Retour aux annonces

Vente intéractive - Fréjus (83370) Appartement 57.45 m² Proposé par SELARL Karine TILMANT et Céline GRIEU

1re offre possible dès

212 000 €

Soit 200 000 € + Honoraires de négociation TTC : 12 000 €

Soit 6,00% à la charge de l'acquéreur

Les caractéristiques

Général

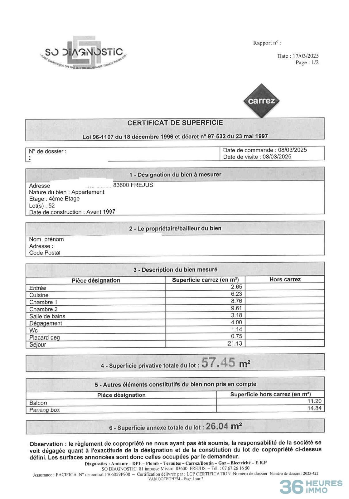
  • 57.45 m² - Surface habitable

Intérieur

  • Ascenseur

Extérieur

  • Garage
  • Balcon

Autres informations

  • Mer

Description du bien

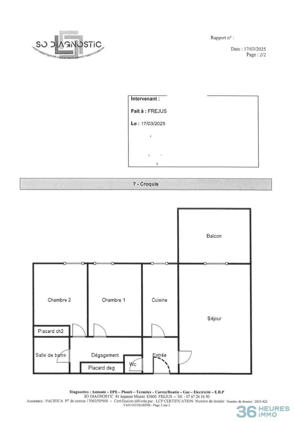
APPARTEMENT au 4eme étage comprenant :

hall, cuisine, séjour, deux chambres, salle de douche, WC, balcon et garage
7 minutes de la plage à pied
20 minutes à pied de la gare
commerces à proximité

Vous êtes intéressé(e) par une visite ?
- Connectez-vous sur le site 36h-immo,
- Choisissez la Commune et sélectionnez l'annonce qui vous convient,
- Cliquez sur " ce bien m'intéresse ",
- Créez-vous un compte 36h-immo ou connectez-vous si vous avez déjà
un compte,
- Choisir le créneau de visite qui vous convient
- Validez votre email en vous rendant sur votre boîte de réception et en
cliquant sur le lien qui vous sera présenté,
- Un email de confirmation d'inscription et de visite vous sera adressé
automatiquement.

Vous souhaitez participer à la vente interactive ?

Signez la demande d'agrément,
Ajoutez votre pièce d'identité,
Ajoutez un commentaire et/ou une attestation de votre banque
indiquant que vous disposez des fonds
- Rendez-vous sur le site 36h-immo en vous connectant à l'aide de
votre email et de votre mot de passe,
- Une fois votre visite validée par le professionnel :

Référence du bien : 27080/3

Diagnostics immobiliers

DPE

Diagnostic de performance énergétique

Réalisé le 08/03/2025

A B C D E F G

122 kWh/m²/an

GES

Indice d'émission de gaz à effet de serre

 

A B C D E F G

3 kg CO₂/m²/an

Coûts énergétiques

Estimation annuelle des coûts d'énergie

 

600 € 870 €
/ an

Prix moyens des énergies indexés sur l'année de référence du diagnostic.

État des risques

Les informations sur les risques auxquels ce bien est exposé sont disponibles sur le site Géorisques : www.georisques.gouv.fr

Emplacement

Explorez l’environnement du bien et les points d’intérêt à proximité en vue 3D.

rue Georges vigneron, 83370 Fréjus

Besoin d'aide pour concrétiser votre projet ? Nos partenaires sont là pour vous accompagner

Financement, déménagement, assurance habitation... Découvrez tous les services pour faciliter votre achat immobilier, où que vous soyez en France.

Financer votre achat immobilier

Avancez pas à pas dans votre projet immobilier et préparez sereinement votre dossier en trouvant la solution de financement la plus adaptée à vos besoins.

Organiser votre déménagement

Simplifiez chaque étape grâce à nos solutions personnalisées pour organiser votre déménagement sans stress, du premier carton jusqu'à votre installation.

Assurer votre nouveau logement

Sécurisez votre acquisition à chaque étape grâce à nos conseils sur les obligations légales et administratives, l'accès à des outils pratiques.

Etapes du parcours d'achat

Plus de détails sur l'achat
1

Inscription, visite & dossier

Créez votre compte, visitez le bien et préparez votre dossier en ligne.

2

Faites vos offres

Déposez vos offres en toute simplicité pendant la vente.

3

Finalisation de l'achat

Votre offre est retenue ? Finalisez l'achat avec nos experts et signez en toute sérénité.