Retour aux annonces

Vente intéractive - Saint-Cast-le-Guildo (22380) Terrain à Bâtir (Terrain à bâtir) 419 m² Proposé par NOTIMMO

1re offre possible dès

157 000 €

Soit 146 728,97 € + Honoraires de négociation TTC : 10 271,03 €

Soit 7,00% à la charge de l'acquéreur

  • Beau terrain plat proche des plages
  • Beau terrain plat proche des plages

Les caractéristiques

Général

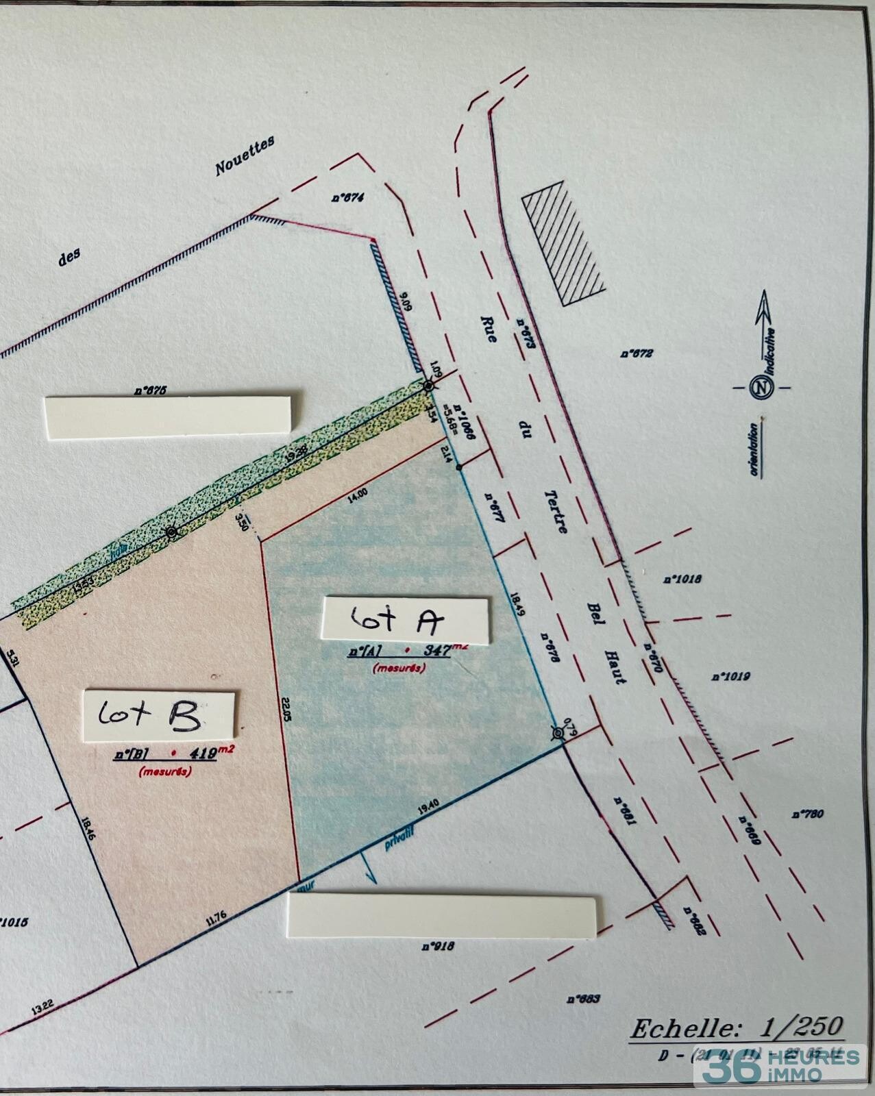
  • 419 m² - Surface parcelle cadastrale

Intérieur

  • Aucune donnée

Extérieur

  • Aucune donnée

Autres informations

  • Mer

Description du bien

Beau terrain plat proche des plages

A vendre TERRAIN à bâtir à SAINT CAST LE GUILDO dans les Côtes d'Armor (22).
A proximité immédiate de la plage de la Pissotte... opportunité RARE d'acquérir un terrain à bâtir plat de 419 m2 LOT B.
Quelques caractéristiques du bien :
La voirie publique est desservie en eau, en électricité et l'assainissement est collectif.
Le terrain est situé en zone UCa : zone urbaine pavillonnaire.
Saint Cast Le Guido est prisée pour la qualité de ses paysages qui en font un spot de pratique nautique.
Cette belle adresse dans la station balnéaire classée qui vit toute l'année profitera tout aussi bien à un investisseur ou particulier!
Dossier technique (plan cadastral, urbanisme) disponible en vous connectant sur 36h-immo.

Référence du bien : 36H231272

Diagnostics immobiliers

Ce bien est exempté de diagnostic de performance énergétique.

État des risques

Les informations sur les risques auxquels ce bien est exposé sont disponibles sur le site Géorisques : www.georisques.gouv.fr

Documents

Restreint

+5 documents

Accès réservé aux utilisateurs avec une visite validée du bien.

5 documents restreints

Emplacement

Explorez l’environnement du bien et les points d’intérêt à proximité en vue 3D.

rue du Tertre Bel Haut, 22380 Saint-Cast-le-Guildo

Besoin d'aide pour concrétiser votre projet ? Nos partenaires sont là pour vous accompagner

Financement, déménagement, assurance habitation... Découvrez tous les services pour faciliter votre achat immobilier, où que vous soyez en France.

Financer votre achat immobilier

Avancez pas à pas dans votre projet immobilier et préparez sereinement votre dossier en trouvant la solution de financement la plus adaptée à vos besoins.

Organiser votre déménagement

Simplifiez chaque étape grâce à nos solutions personnalisées pour organiser votre déménagement sans stress, du premier carton jusqu'à votre installation.

Assurer votre nouveau logement

Sécurisez votre acquisition à chaque étape grâce à nos conseils sur les obligations légales et administratives, l'accès à des outils pratiques.

Etapes du parcours d'achat

Plus de détails sur l'achat
1

Inscription, visite & dossier

Créez votre compte, visitez le bien et préparez votre dossier en ligne.

2

Faites vos offres

Déposez vos offres en toute simplicité pendant la vente.

3

Finalisation de l'achat

Votre offre est retenue ? Finalisez l'achat avec nos experts et signez en toute sérénité.